pull-icon
logo-mobile
logo-mobile

Гость

Гостевой доступ

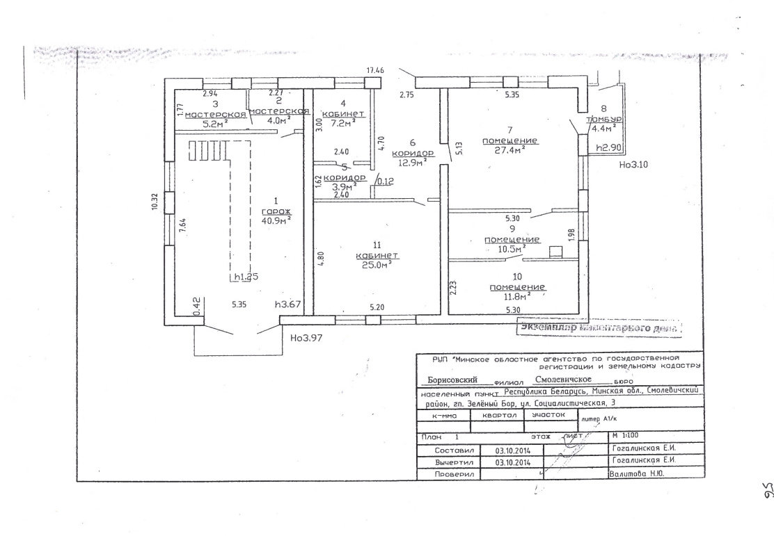
Гараж в гп. Зеленый Бор (Смолевичский район), площадью 153.2 м²

Информация о предмете торгов
Местоположение имущества Минская область, Смолевичский р-н, гп Зеленый Бор, ул. Социалистическая, д. 3
Площадь общая (кв.м.) 153.2
Описание Сведения о капитальном строении:
Наименование: гараж;
Назначение: Здание специализированное автомобильного транспорта;
Составные части и принадлежности: пристройка (лит. 1), два крыльца, смотровая яма;
Принадлежит должнику на праве собственности.

Кадастровый номер земельного участка, на котором расположено капитальное строение: 624855700001000423, площадью 1.8112 га (Право аренды);
Целевое назначение земельного участка: Земельный участок для обслуживания зданий и сооружений
Назначение земельного участка в соответствии с единой классификацией назначения объектов
недвижимого имущества: Земельный участок для размещения объектов неустановленного назначения;
Отдельный земельный участок для обслуживания капитального строения не выделен;
Описание права, ограничения (обременения) прав: Ограничения (обременения) прав на земельные участки, расположенные в охранных зонах линий электропередачи, площадь 0.0670 га;
Описание права, ограничения (обременения) прав: Ограничения (обременения) прав на земельные участки, расположенные в охранных зонах сетей и сооружений водоснабжения, площадь 0.1910 га;
Описание права, ограничения (обременения) прав: Ограничения (обременения) прав на земельные участки, расположенные в охранных зонах сетей и сооружений канализации, площадь 0.0589 га;
Описание права, ограничения (обременения) прав: Ограничения (обременения) прав на земельные участки, расположенные в охранных зонах сетей и сооружений теплоснабжения, площадь 0.0556 га.

Выявлены проезды, ограждения, не отраженные в техническом паспорте.
Инвентарный номер 614/C-20129
Должник: ООО "Альфа релакс"
Обременения: Запрещение покупателю отчуждения имущества до выполнения условий договора купли-продажи. Запрет на совершение регистрационных действий.
Осмотр объекта
Участник электронных торгов обязан до начала электронных торгов осмотреть предмет торгов ( п.2.4.3 Регламента)
Контактное лицо: Управление оценки и реализации имущества
Контакты: +375445293933
Организатор торгов
Наименование Республиканское унитарное предприятие по оказанию услуг "БелЮрОбеспечение"
УНП организации 192821149
Контакты организатора аукциона +375445293933
Адрес организатора аукциона 220069, г. Минск, пр-т Дзержинского, 1Б
Email организатора аукциона minsk@e-auction.by
Орган принудительного исполнения
Наименование ОПИ УПИ главного управления юстиции Минского облисполкома
УНП 600013502
Адрес 220036, г. Минск, ул. К. Либкнехта, 68
Телефон 8 (017) 343-52-00
Email upi501@minjust.by
Реквизиты ОПИ УПИ главного управления юстиции Минского облисполкома, УНП: 600013502, р/c BY84AKBB36420000002880000000 в ОАО "АСБ Беларусбанк", БИК AKBBBY2X
Судебный исполнитель
Ф.И.О. Никифорова Татьяна Сергеевна
Телефон +375445292948

Вы оказались единственными учатником аукциона

Вам предоставляется возможнсть преобрести лот №5.2025.06.00348 по начальной цене 23 040.00 BYN плюс 5%.

Итоговая стоимость имущества составит: 24 192.00 BYN

Согласен приобрести лот Не согласен приобрести лот

Вам предложено преобрести имущество

В связи с признанием торгов несостоявшимися ввиду неоплаты победителем стоимости лота предлагаем в течение 5 рабочих дней принять решение о приобретении лота №5.2025.06.00348 по вашей последней ставке.

Итоговая стоимость имущества составит: 0.00 BYN

Согласен приобрести лот Не согласен приобрести лот


Для участия в аукционе вам нужно оплатить задаток в размере 2 304.00 BYN для участия в аукционе.


Внимание! Вы действительно хотите установить ставку равную 15 000,03 BYN значительно превышающую по отношению к предыдущей на

+10 000,00 BYN


Внимание! Вы действительно хотите установить ставку равную 15 000,03 BYN, значительно превышающую по отношению к предыдущей на

+10 000,00 BYN

Ставка значительно превышает предыдущую ставку. Для подтверждения ставки подтвердите согласие на установку и введите слово "СОГЛАСЕН" в поле ниже:




Забыли пароль? Восcтановить доступ к площадке.


Уважаемый пользователь! В соответствии с Законом Республики Беларусь «О защите персональных данных» для продолжения работы на интернет-сайте e- auction.by просим ознакомиться с Пользовательским соглашением интернет-сайта e-auction.by и выразить согласие на обработку информации о пользователе, в том числе персональных данных.


Для восcтановления доступа вам нужно ввести зарегистрированный почтовый адрес. На указанный вами почтовый адрес будет выслана уникальная ссылка для создания нового пароля.

Вспомнили? Авторизация