pull-icon
logo-mobile
logo-mobile

Гость

Гостевой доступ

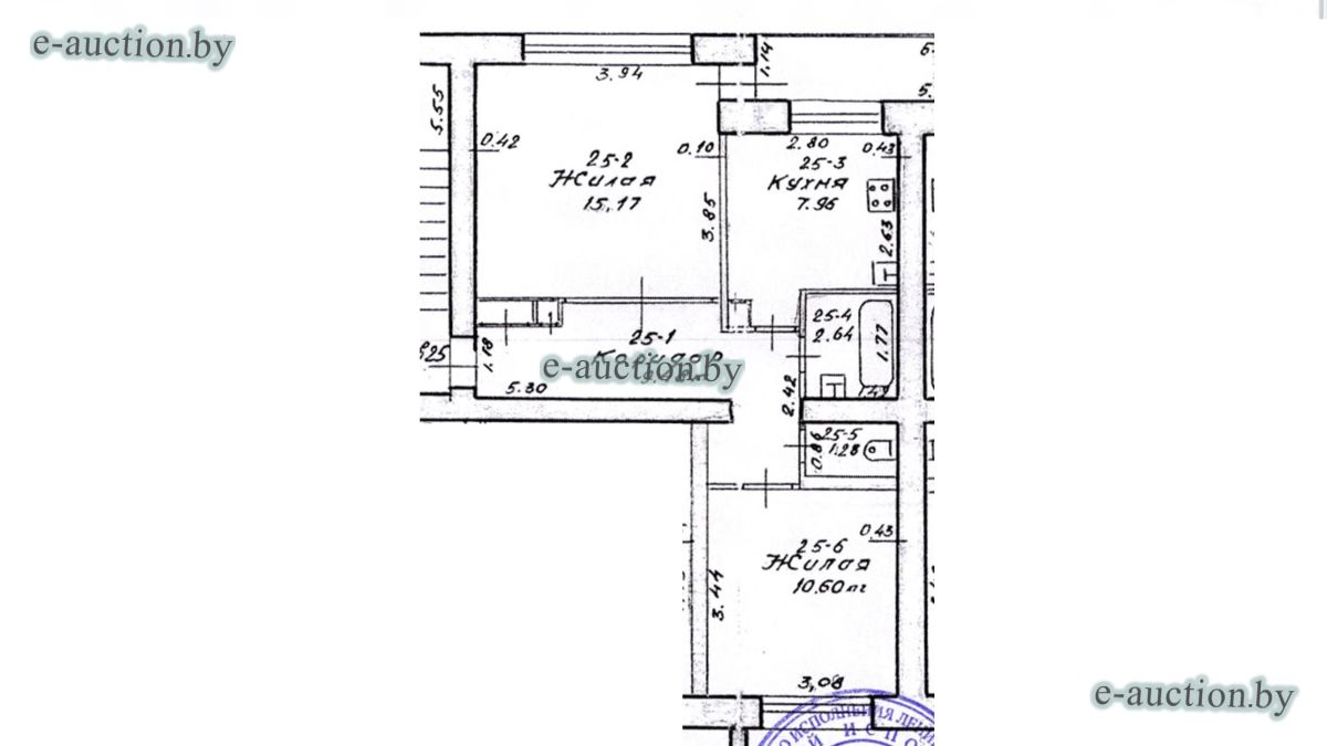
Двухкомнатная квартира в г. Петрикове, площадью 50.8м²

Информация о предмете торгов
Местоположение имущества Гомельская область, Петриковский р-н, г. Петриков, ул. Карла Маркса, д.10, кв.25
Количество комнат 2
Этажность сооружения / Этаж 5 / 4
Площадь общая (кв.м.) 50.8
Описание Сведения об изолированном помещении:
Наименование: Квартира №25
Назначение: Квартира
Число комнат: 2

Примечания:
Двухкомнатная квартира в пятиэтажном, кирпичном жилом доме на четвертом этаже с ванной, туалетом, коридором, кухней, лоджией, подвальным помещением №25.
Инвентарный номер 335/D-2080
Должник: Липинский Александр Федорович
Обременения: Запрет совершения регистрационных действий судебного исполнителя. Количество зарегистрированных по месту жительства: 2.
Осмотр объекта
Участник электронных торгов обязан до начала электронных торгов осмотреть предмет торгов ( п.2.4.3 Регламента)
Контактное лицо: Специалисты по продаже
Контакты: +375445293912
Организатор торгов
Наименование Гомельский филиал республиканского унитарного предприятия по оказанию услуг "БелЮрОбеспечение"
УНП организации 192821149
Контакты организатора аукциона +375445293917; +375445293912
Адрес организатора аукциона 246007, г. Гомель, ул. Троллейбусная, 6
Email организатора аукциона gomel@e-auction.by
Орган принудительного исполнения
Наименование ОПИ Ленинского р-на г.Минска
УНП 100223493
Адрес 220026, г.Минск, ул.Жилуновича, 15
Телефон 8 (017) 328-81-85
Email opi703@minjust.by
Реквизиты ОПИ Ленинского р-на г.Минска, УНП: 100223493, р/c BY20AKBB36429524000820000000 в ОАО «АСБ Беларусбанк», БИК AKBBBY2X
Судебный исполнитель
Ф.И.О. Павлович Екатерина Михайловна
Телефон +37544529-25-50

Вы оказались единственными учатником аукциона

Вам предоставляется возможнсть преобрести лот №3.2026.01.00061 по начальной цене 45 000.00 BYN плюс 5%.

Итоговая стоимость имущества составит: 47 250.00 BYN

Согласен приобрести лот Не согласен приобрести лот

Вам предложено преобрести имущество

В связи с признанием торгов несостоявшимися ввиду неоплаты победителем стоимости лота предлагаем в течение 5 рабочих дней принять решение о приобретении лота №3.2026.01.00061 по вашей последней ставке.

Итоговая стоимость имущества составит: 0.00 BYN

Согласен приобрести лот Не согласен приобрести лот


Для участия в аукционе вам нужно оплатить задаток в размере 4 500.00 BYN для участия в аукционе.


Внимание! Вы действительно хотите установить ставку равную 15 000,03 BYN значительно превышающую по отношению к предыдущей на

+10 000,00 BYN


Внимание! Вы действительно хотите установить ставку равную 15 000,03 BYN, значительно превышающую по отношению к предыдущей на

+10 000,00 BYN

Ставка значительно превышает предыдущую ставку. Для подтверждения ставки подтвердите согласие на установку и введите слово "СОГЛАСЕН" в поле ниже:




Забыли пароль? Восcтановить доступ к площадке.


Уважаемый пользователь! В соответствии с Законом Республики Беларусь «О защите персональных данных» для продолжения работы на интернет-сайте e- auction.by просим ознакомиться с Пользовательским соглашением интернет-сайта e-auction.by и выразить согласие на обработку информации о пользователе, в том числе персональных данных.


Для восcтановления доступа вам нужно ввести зарегистрированный почтовый адрес. На указанный вами почтовый адрес будет выслана уникальная ссылка для создания нового пароля.

Вспомнили? Авторизация