Предмет торгов
| Местоположение имущества | Могилёвская область, Могилевский р-н, г. Могилев, ул. Химиков, 10-4 |
|
Характеристика предмета торгов, иные сведения о предмете торгов
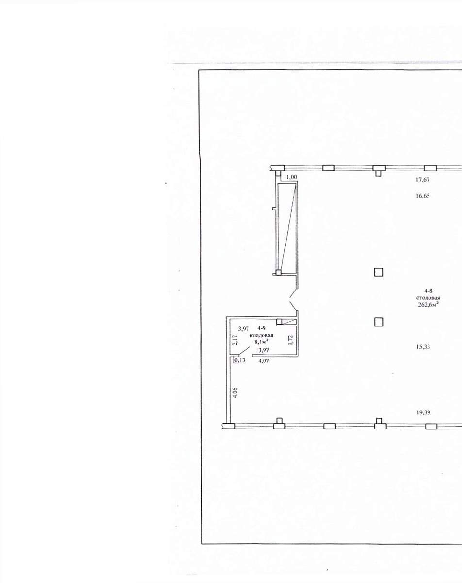
1. Изолированное помещение:Инвентарный номер: 700/D-106607. Адрес: Могилевская обл., г. Могилев, ул. Химиков, 10-4. Общая площадь (кв.м): 794.9. Наименование: Изолированное помещение № 4. Назначение: Помещение общественного питания. Число комнат: 0. Примечания: Изолированное помещение № 4 расположено на 1-2 эт. Места общего пользования: тамбур - 13,9 кв.м., электрощитовая - 12,2 кв.м., насосная - 14,7 кв.м., венткамера - 104,5 кв.м., коридор - 339,5 кв.м., вестибюль - 78,2 кв.м., гардероб - 6,9 кв.м., вахтерская -4,9 кв.м., лестничная клетка - 157,4 кв.м., санузлы - 50,6 кв.м. Право собственности: Республика Беларусь. 2. Лифт подъемный грузовой ЛГ-500-2 с инвентарным номером 3013 (требует ремонта). Право собственности: ОАО «ТРЕСТ БЕЛСАНТЕХМОНТАЖ №1» . Начальная цена предмета электронных торгов 138 100,00 руб., в том числе: изолированное помещение 137 500, 00 руб. (НДС не облагается); лифт 600,00 руб. (НДС 100,00 руб.). |
|
Загруженные файлы
| Изображения имущества |
|
Общая информация
| Сведения об обременениях | Арест лифта, осуществление его продажи под контролем судебного исполнителя. |
| Форма собственности | Республиканская, Частная |
| Собственник имущества | Республика Беларусь, ОАО «ТРЕСТ БЕЛСАНТЕХМОНТАЖ №1» |
| Сведения о публикации |
|
| Перечень лиц, которые могут быть допущены к участию в торгах |
|
Осмотр имущества
| Контактное лицо для осмотра | Продавец предмета электронных торгов |
| Телефоны контактного лица | +375447934661 |
| Порядок осмотра предмета торгов | Осмотр имущества осуществляется по предварительной договоренности с продавцом имущества. |
Продавец имущества
| Наименование | 1. Министерство архитектуры и строительства Республики Беларусь (в отношении изолированного помещения). 2. Открытое акционерное общество «ТРЕСТ БЕЛСАНТЕХМОНТАЖ №1» (в отношении лифта) |
| Контакты | +375 17 2588393, +375 29 6054972 |
| Адрес | 1. 220030, г. Минск, ул. Мясникова, 39. 2.220013, г.Минск, ул.Я.Коласа, 23, корп.1 |
Оператор ЭТП
| Наименование | Республиканское унитарное предприятие по оказанию услуг «БелЮрОбеспечение» |
| УНП | 192821149 |
| Адрес | 220069, г. Минск, пр-т. Дзержинского, 1Б |
Информация по проведению торгов
|
Порядок и сроки оплаты предмета торгов (включая информацию о возможности предоставления рассрочки по оплате предмета торгов)
Победитель аукциона (единственный участник) в течение 20 рабочих дней с даты заключения договора, оформляемого продавцом по результатам электронных торгов, обязан перечислить на расчетный счет продавца сумму, за которую продан предмет аукциона, за вычетом внесенной им суммы задатка, а также возместить затраты на организацию и проведение электронных торгов.
|
|
|
Срок подписания договора, оформляемого по результатам электронных торгов
5 рабочих дней с даты проведения электронных торгов.
|
|
|
Инструкция для регистрации пользователей на участие в электронных торгах
|
|
|
Перечень представляемых участниками электронных торгов документов и требования к их оформлению
Для участия в электронных торгах лицу, желающему принять участие, необходимо направить электронную заявку на участие в торгах и приложить изображение документа, подтверждающего факт оплаты задатка. Данный документ необходимо прикрепить в лоте в поле «Прикрепить подтверждение оплаты» и ожидать одобрения оператора электронной торговой площадки e-auction.by. После одобрения на электронную почту, указанную при аккредитации на ЭТП приходит уведомление с уникальным кодом участника. |
|
|
Порядок проведения электронных торгов
Аукцион проводится в порядке, установленном Положением о порядке проведения электронных торгов по продаже государственного имущества, включая земельные участки, права заключения договора аренды государственного имущества, в том числе земельных участков, утвержденным постановлением Совета Министров Республики Беларусь от 12.07.2013 № 608 и Регламентом организации и проведения электронных торгов по продаже имущества и имущественных прав на ЭТП.Электронные торги начинаются в день и время, указанные в объявлении о предстоящих электронных торгах, и проводятся при наличии не менее двух допущенных к участию в них участников. В ходе электронных торгов любой участник имеет право на новое ценовое предложение, которое должно превысить предыдущее предложение. Величина первого шага составляет 5 процентов начальной цены выставленного на электронные торги лота. Все последующие шаги производятся участниками путем увеличения последней предложенной цены. Организатором электронных торгов может устанавливаться шаг электронных торгов. Если последняя ставка сделана участником менее чем за 10 минут до окончания срока проведения электронных торгов, срок проведения электронных торгов продлевается на 10 минут с момента поступления последней ставки. Каждая последующая ставка продлевает срок проведения электронных торгов на 10 минут, при этом новое ценовое предложение должно превышать предыдущее. Если несколько участников сделают одинаковые ставки, при помощи программных и технических средств ЭТП учитывается ставка участника, сделанная раньше других. Участник не вправе делать новую ставку, если предыдущая ставка сделана им же, а также ставку, равную нулю. Участник не может отменить либо отозвать сделанное ценовое предложение. В случае согласия единственного участника, подавшего заявку на участие в электронных торгах, приобрести лот по начальной цене, увеличенной на 5 процентов, применяется порядок, установленный Регламентом организации и проведения электронных торгов по продаже имущества и имущественных прав на ЭТП для победителя электронных торгов. Согласие на приобретение лота по начальной цене, увеличенной на 5 процентов, претендент на покупку подтверждает путем дачи соответствующего согласия с использованием функциональных возможностей ЭТП. Такое согласие участник подтверждает путем внесения предложения о приобретении предмета торгов на указанных условиях в течение 10 минут со времени начала проведения электронных торгов. Отсутствие данного предложения признаётся отказом от приобретения предмета торгов на предлагаемых условиях. Оператор: Республиканское унитарное предприятие по оказанию услуг "БелЮрОбеспечение" 220069, г. Минск, пр-т. Дзержинского, 1Б, р/счет BY35AKBB30120000092335100000 в ОАО «АСБ Беларусбанк», BIC AKBBBY2X, УНП 192821149 Тел. 8 (044) 529-39-25 Электронный адрес оператора ЭТП: minsk@e-auction.by |
Цена / Задаток / Затраты / Штраф
| Определение начальной цены продажи | Определяется организатором |
| Начальная цена недвижимого имущества, бел.руб | 138 100.00 BYN Справочно по курсу НБРБ |
| Начальная стоимость | 138 100.00 BYN Справочно по курсу НБРБ |
| Сумма задатка для участия | 13 810.00 BYN Справочно по курсу НБРБ |
| Срок внесения задатка | до 22.11.2024 16:00:00 |
|
Порядок внесения задатка
Задаток для участия в электронных торгах перечисляется на текущий (расчетный) счет №BY35AKBB30120000092335100000 в ЦБУ № 510 ОАО «АСБ Беларусбанк», БIC: AKBBBY2X, УНП 192821149, получатель платежа – республиканское унитарное предприятие по оказанию услуг «БелЮрОбеспечение». Срок внесения задатка – не позднее даты и времени окончания приема заявлений на участие в электронных торгах.
|
|
|
Информация о порядке и сроках возмещения затрат
Победитель электронных торгов (единственный участник) в течение 20 рабочих дней с даты заключения договора купли-продажи, оформляемого продавцом по результатам электронных торгов, обязан возместить затраты на организацию и проведение электронных торгов.Банковские реквизиты: расчетный счет: BY18BPSB30120069500119330000 Банк: ОАО «Сбер банк» BIC: BPSBBY2X Получатель: ОАО «ТРЕСТ БЕЛСАНТЕХМОНТАЖ №1» УНП: 100039862 |
|
| Сумма затрат на организацию и проведение торгов | 146.17 BYN Справочно по курсу НБРБ |
| Размер штрафа | 2 500.00 BYN Справочно по курсу НБРБ |