pull-icon
logo-mobile
logo-mobile

Гость

Гостевой доступ

Комплекс недвижимого имущества в г. Витебске

Информация о предмете торгов
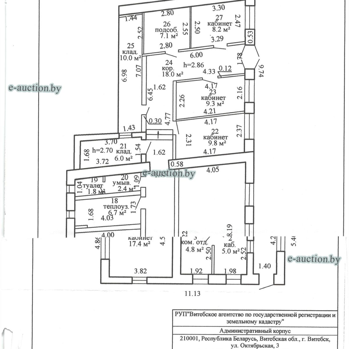
Местоположение имущества г. Витебск, ул. Октябрьская, 3
Описание Комплекс недвижимого имущества с правом аренды земельного участка в г. Витебске и многолетним насаждением:

1. Сведения о капитальном строении:
Инвентарный номер: 200/C-54443
Адрес (местоположение): Витебская обл., г. Витебск, ул. Октябрьская, 3
Общая площадь (протяженность): 322.6
Наименование: административный корпус
Назначение: Здание административно-хозяйственное
Составные части и принадлежности: пристройка, проезжая часть, пешеходная часть, ограждение: участок 1, участок 2, участок 3, четверо ворот, калитка

2. Сведения о капитальном строении:
Инвентарный номер: 200/C-54455
Адрес (местоположение): Витебская обл., г. Витебск, ул. Октябрьская, 3/3
Общая площадь (протяженность): 714.6
Наименование: Столярная мастерская
Назначение: Здание неустановленного назначения
Составные части и принадлежности: Подвал, проезжая часть, пешеходная часть, ограждение: участок 1, участок 2, участок 3, калитка, четверо ворот
Примечания: Кирпичное здание столярной мастерской

3. Сведения о капитальном строении:
Инвентарный номер: 200/C-54444
Адрес (местоположение): Витебская обл., г. Витебск, ул. Октябрьская, 3/ 6
Общая площадь (протяженность): 259.4
Наименование: склады
Назначение: Здание специализированное складов, торговых баз, баз материально-технического снабжения, хранилищ
Составные части и принадлежности: щитовая, проезжая часть, пешеходная часть, ограждение: участок 1, участок 2, участок 3, четверо ворот, калитка
Примечания: одноэтажное кирпичное здание складов с щитовой.

4. Сведения о капитальном строении:
Инвентарный номер: 200/C-54441
Адрес (местоположение): Витебская обл., г. Витебск, ул. Октябрьская, 3/1
Общая площадь (протяженность): 173.2
Наименование: Склады
Назначение: Здание специализированное складов, торговых баз, баз материально-технического снабжения, хранилищ
Составные части и принадлежности: Пристройка, проезжая часть, пешеходная часть, ограждение: участок 1, участок 2, участок 3, калитка, четверо ворот
Примечания: Одноэтажное кирпичное здание складов.

5. Сведения о капитальном строении:
Инвентарный номер: 200/C-54446
Адрес (местоположение): Витебская обл., г. Витебск, ул. Октябрьская, 3/ 9
Общая площадь (протяженность): 94.1
Наименование: склад цементный
Назначение: Здание специализированное складов, торговых баз, баз материально-технического снабжения, хранилищ
Составные части и принадлежности: проезжая часть, пешеходная часть, ограждение: участок 1, участок 2, участок 3, четверо ворот, калитка
Примечания: одноэтажное кирпичное здание цементного склада.

6. Сведения о капитальном строении:
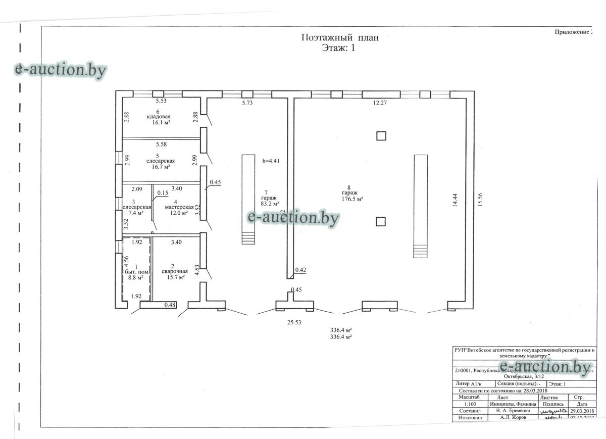
Инвентарный номер: 200/C-54447
Адрес (местоположение): Витебская обл., г. Витебск, ул. Октябрьская, 3/ 12
Общая площадь (протяженность): 336.4
Наименование: гаражи
Назначение: Здание специализированное для ремонта и (или) технического обслуживания автомобилей (в том числе автомобильные заправочные, зарядные и газонаполнительные станции)
Составные части и принадлежности: проезжая часть, пешеходная часть, ограждение: участок 1, участок 2, участок 3, четверо ворот, калитка
Примечания: одноэтажное кирпичное здание гаражей.

7. Сведения о капитальном строении:
Инвентарный номер: 200/C-54448
Адрес (местоположение): Витебская обл., г. Витебск, ул. Октябрьская, 3/ 2
Общая площадь (протяженность): 105.1
Наименование: здание мастерской столярной
Назначение: Здание неустановленного назначения
Составные части и принадлежности: проезжая часть, пешеходная часть, ограждение: участок 1, участок 2, участок 3, четверо ворот, калитка
Примечания: одноэтажное кирпичное мастерской столярной.

8. Сведения о капитальном строении:
Инвентарный номер: 200/C-54451
Адрес (местоположение): Витебская обл., г. Витебск, ул. Октябрьская, 3/ 15
Общая площадь (протяженность): 191.6
Наименование: склады
Назначение: Здание специализированное складов, торговых баз, баз материально-технического снабжения, хранилищ
Составные части и принадлежности: проезжая часть, пешеходная часть, ограждение: участок 1, участок 2, участок 3, четверо ворот, калитка
Примечания: одноэтажное кирпичное здание складов.

9. Сведения о капитальном строении:
Инвентарный номер: 200/C-54453
Адрес (местоположение): Витебская обл., г. Витебск, ул. Октябрьская, 3/11
Общая площадь (протяженность): 109.8
Наименование: Растворный узел
Назначение: Здание неустановленного назначения
Составные части и принадлежности: Проезжая часть, пешеходная часть, ограждение: участок 1, участок 2, участок 3, калитка, четверо ворот, навес
Примечания:Двухэтажное кирпичное здание растворного узла.

10. Сведения о капитальном строении:
Инвентарный номер: 200/C-54452
Адрес (местоположение): Витебская обл., г. Витебск, ул. Октябрьская, 3/ 10
Общая площадь (протяженность): 143.3
Наименование: склады
Назначение: Здание специализированное складов, торговых баз, баз материально-технического снабжения, хранилищ
Составные части и принадлежности: Проезжая часть, пешеходная часть, ограждение: учаток 1, участок 2, участок 3, четверо ворот, калитка
Примечания:одноэтажное кирпичное здание складов.

11. Сведения о капитальном строении:
Инвентарный номер: 200/C-54445
Адрес (местоположение): Витебская обл., г. Витебск, ул. Октябрьская, 3/13
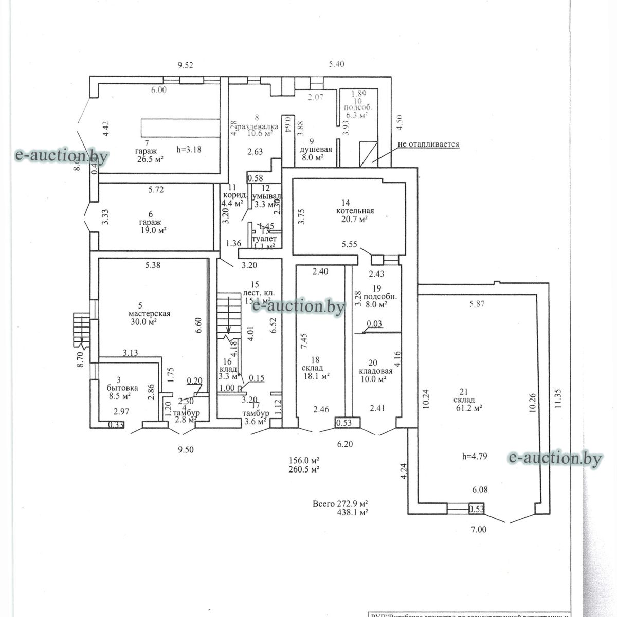
Общая площадь (протяженность): 438.1
Наименование: Бытовые помещения
Назначение: Здание неустановленного назначения
Составные части и принадлежности: Подвал, гараж, склад, проезжая часть, пешеходная часть, ограждение: участок 1, участок 2, участок 3, калитка, четверо ворот
Примечания: Кирпичное здание бытового помещения.

12. Сведения о капитальном строении:
Инвентарный номер: 200/C-99168
Адрес (местоположение): Витебская обл., г. Витебск, ул. Октябрьская, эстакада вблизи здания №3
Общая площадь (протяженность): 0.0
Наименование: Эстакада
Назначение: Сооружение специализированное коммунального хозяйства
Составные части и принадлежности: Эстакада
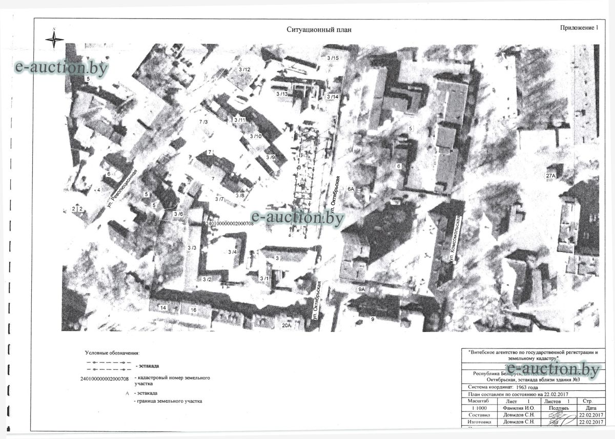
Кадастровый номер земельного участка, на котором расположено капитальное строение: 240100000002010338


Кадастровый номер земельного участка, на котором расположены капитальные строения: 240100000002010338, площадью 1.1957 га (Право аренды).

13. Сведения о капитальном строении:
Инвентарный номер: 200/C-84074
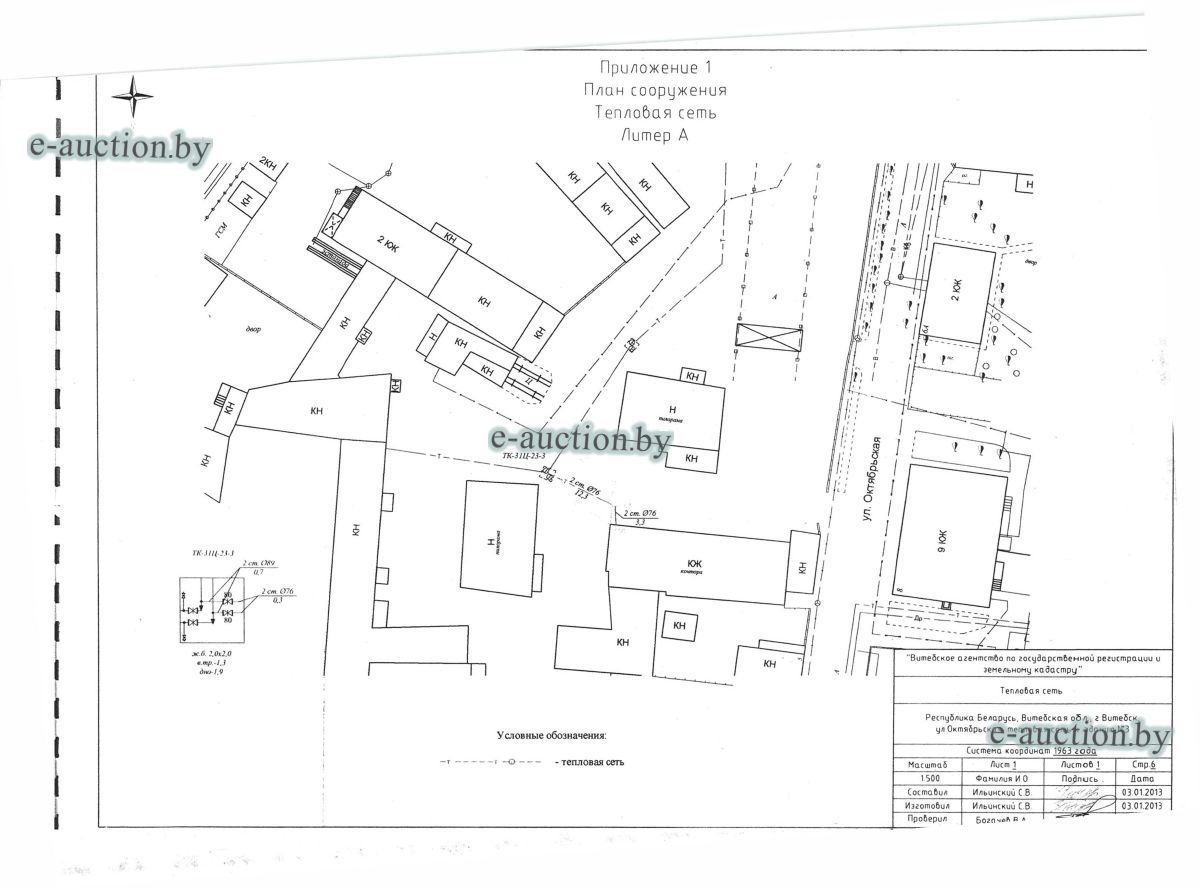
Адрес (местоположение): Витебская обл., г. Витебск, ул. Октябрьская, тепловая сеть к зданию № 3
Общая площадь (протяженность): 0.0
Наименование: Тепловая сеть
Назначение: Сооружение специализированное энергетики
Составные части и принадлежности: сведения отсутствуют
Кадастровый номер земельного участка, на котором расположено капитальное строение: 240100000002007507(присвоен предварительно)
Примечания: Протяженность - 16,6 м.

14. Сведения о капитальном строении:
Инвентарный номер: 200/C-101584
Адрес (местоположение): Витебская обл., г. Витебск, ул. Октябрьская, водопроводная сеть к зданиям №№3/1,3/13
Общая площадь (протяженность): 0.0
Наименование: Водопроводная сеть
Назначение: Сооружение специализированное коммунального хозяйства
Составные части и принадлежности: 2 участка сети
Кадастровый номер земельного участка, на котором расположено капитальное строение: 240100000002009711(присвоен предварительно)
Примечания: Протяженность - 102.6 м.

Право собственности: Общество с ограниченной ответственностью "ВИК Эстейт".

Цена указана с учетом НДС.
Инвентарный номер 200/C-54443, 200/C-54455, 200/C-54444, 200/C-54441, 200/C-54446, 200/C-54447, 200/C-54448, 200/C-54451 200/C-54453, 200/C-54452, 200/C-54445, 200/C-84074, 200/C-101584, 200/C-99168
Осмотр объекта
Участник электронных торгов обязан до начала электронных торгов осмотреть предмет торгов ( п.2.4.3 Регламента)
Контактное лицо: Заказчик  электронных  торгов
Контакты: +375291042150
Продавец имущества
Наименование ООО «ВИК Эстейт»
УНП организации 193497012
Контакты организатора аукциона +375291042150
Адрес организатора аукциона БЕЛАРУСЬ, Г. МИНСК, УЛ. К.ТУРОВСКОГО, ДОМ 4, ОФ. 252
Сведения о публикации в газете Газета "Рэспубліка", планируемая дата публикации 21.02.2026
Оператор торгов
Наименование Управление оценки и реализации имущества
Адрес пр-т. Дзержинского, 1Б, 220069, г. Минск
Телефон +375 (44) 529-39-07 (отдел электронных торгов), +375 (17) 275-00-12 (магазин), +375 (44) 529-39-24 (магазин), +375 (44) 529-39-27 (интернет-магазин)
Email kanc@rup.by
Реквизиты Республиканское унитарное предприятие по оказанию услуг "БелЮрОбеспечение", УНП: 192821149, р/c BY54AKBB30120000080165100000 в ОАО «АСБ Беларусбанк», БИК AKBBBY2X

Вы оказались единственными учатником аукциона

Вам предоставляется возможнсть преобрести лот №9.2026.03.00040 по начальной цене 448 576.62 BYN плюс 5%.

Итоговая стоимость имущества составит: 471 005.45 BYN

Согласен приобрести лот Не согласен приобрести лот

Вам предложено преобрести имущество

В связи с признанием торгов несостоявшимися ввиду неоплаты победителем стоимости лота предлагаем в течение 5 рабочих дней принять решение о приобретении лота №9.2026.03.00040 по вашей последней ставке.

Итоговая стоимость имущества составит: 587 635.38 BYN

Согласен приобрести лот Не согласен приобрести лот


Для участия в аукционе вам нужно оплатить задаток в размере 44 857.66 BYN для участия в аукционе.


Внимание! Вы действительно хотите установить ставку равную 15 000,03 BYN значительно превышающую по отношению к предыдущей на

+10 000,00 BYN


Внимание! Вы действительно хотите установить ставку равную 15 000,03 BYN, значительно превышающую по отношению к предыдущей на

+10 000,00 BYN

Ставка значительно превышает предыдущую ставку. Для подтверждения ставки подтвердите согласие на установку и введите слово "СОГЛАСЕН" в поле ниже:




Забыли пароль? Восcтановить доступ к площадке.


Уважаемый пользователь! В соответствии с Законом Республики Беларусь «О защите персональных данных» для продолжения работы на интернет-сайте e- auction.by просим ознакомиться с Пользовательским соглашением интернет-сайта e-auction.by и выразить согласие на обработку информации о пользователе, в том числе персональных данных.


Для восcтановления доступа вам нужно ввести зарегистрированный почтовый адрес. На указанный вами почтовый адрес будет выслана уникальная ссылка для создания нового пароля.

Вспомнили? Авторизация