pull-icon
logo-mobile
logo-mobile

Гость

Гостевой доступ

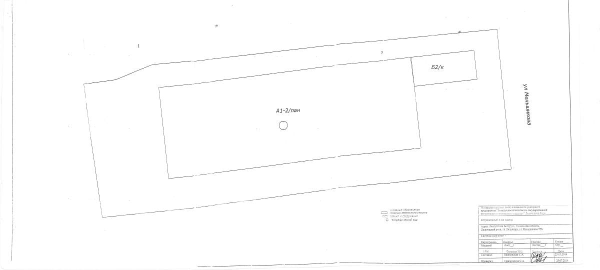
Незавершенное законсервированное капитальное строение в гп Лельчицы, площадью 8258.0м²

Информация о предмете торгов
Местоположение имущества Гомельская область, Лельчицкий р-н, гп Лельчицы, ул. Меньшикова , 75Б
Площадь общая (кв.м.) 8258
Описание Сведения о капитальном строении согласно ЕГРНИ:
Наименование: Незавершенное законсервированное капитальное строение
Назначение: Здание неустановленного назначения

Право хозяйственного ведения.

Сведения о земельном участке согласно ЕГРНИ:
Кадастровый номер земельного участка, на котором расположено капитальное строение: 322855100001001362 площадью 1.7776 га (право аренды по 23.10.2037 г.), расположен в охранных зонах линий электропередачи, площадь 0.1560 га.
Целевое назначение земельного участка: Земельный участок для содержания и обслуживания находящегося в государственной собственности незавершенного не законсервированного капитального строения(здания столярного цеха)
Назначение земельного участка в соответствии с единой классификацией назначения объектов недвижимого имущества: Земельный участок для размещения объектов обрабатывающей промышленности.

Начальная стоимость с НДС.
Инвентарный номер 334/U-11194
Осмотр объекта
Участник электронных торгов обязан до начала электронных торгов осмотреть предмет торгов ( п.2.4.3 Регламента)
Контактное лицо: Заказчик электронных торгов
Контакты: +375447174133
Продавец имущества
Наименование Частное унитарное предприятие по оказанию услуг "Платина-эстейт"
УНП организации 193089647
Контакты организатора аукциона +375445057767
Адрес организатора аукциона 220037, г. Минск, ул. Долгобродская, 16, пом.6, каб. 6-18, 3-ий этаж
Email организатора аукциона platina-urist@mail.ru
Сведения о публикации в газете Газета "Республика", планируемая дата публикации 04.01.2025
Оператор торгов
Наименование Гомельский филиал республиканского унитарного предприятия по оказанию услуг «БелЮрОбеспечение»
Адрес г. Гомель, ул. Троллейбусная, 6
Телефон +375 (232) 35-81-32
Email gomel@e-auction.by
Реквизиты Гомельский филиал республиканского унитарного предприятия по оказанию услуг «БелЮрОбеспечение», УНП: 192821149, р/c BY75AKBB30121246500343000000 в ОАО «АСБ Беларусбанк», БИК AKBBBY2X

Вы оказались единственными учатником аукциона

Вам предоставляется возможнсть преобрести лот №9.2025.01.00047 по начальной цене 210 000.00 BYN плюс 5%.

Итоговая стоимость имущества составит: 220 500.00 BYN

Согласен приобрести лот Не согласен приобрести лот

Вам предложено преобрести имущество

В связи с признанием торгов несостоявшимися ввиду неоплаты победителем стоимости лота предлагаем в течение 5 рабочих дней принять решение о приобретении лота №9.2025.01.00047 по вашей последней ставке.

Итоговая стоимость имущества составит: 0.00 BYN

Согласен приобрести лот Не согласен приобрести лот


Для участия в аукционе вам нужно оплатить задаток в размере 21 000.00 BYN для участия в аукционе.


Внимание! Вы действительно хотите установить ставку равную 15 000,03 BYN значительно превышающую по отношению к предыдущей на

+10 000,00 BYN


Внимание! Вы действительно хотите установить ставку равную 15 000,03 BYN, значительно превышающую по отношению к предыдущей на

+10 000,00 BYN

Ставка значительно превышает предыдущую ставку. Для подтверждения ставки подтвердите согласие на установку и введите слово "СОГЛАСЕН" в поле ниже:




Забыли пароль? Восcтановить доступ к площадке.


Уважаемый пользователь! В соответствии с Законом Республики Беларусь «О защите персональных данных» для продолжения работы на интернет-сайте e- auction.by просим ознакомиться с Пользовательским соглашением интернет-сайта e-auction.by и выразить согласие на обработку информации о пользователе, в том числе персональных данных.


Для восcтановления доступа вам нужно ввести зарегистрированный почтовый адрес. На указанный вами почтовый адрес будет выслана уникальная ссылка для создания нового пароля.

Вспомнили? Авторизация