pull-icon
logo-mobile
logo-mobile

Гость

Гостевой доступ

Комплекс недвижимого имущества в г. Полоцке

Информация о предмете торгов
Местоположение имущества Витебская область, Полоцкий р-н, г. Полоцк, ул. Гагарина, 145, 145/1,145/3
Описание 1. Инвентарный номер: 250/C-38889:
адрес (местоположение): Витебская обл., Полоцкий р-н, г. Полоцк, ул. Гагарина, 145/ 1;
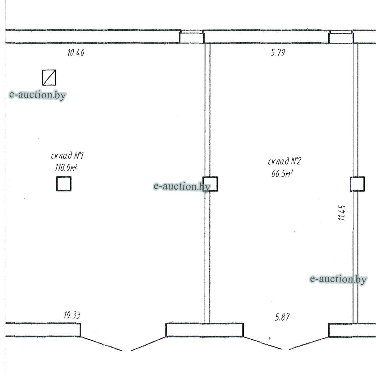
общая площадь (протяженность): 704.8;
наименование: здание склада;
назначение: здание специализированное складов, торговых баз, баз материально-технического снабжения, хранилищ;
составные части и принадлежности: две пристройки;
2. Инвентарный номер: 250/C-38887:
адрес (местоположение): Витебская обл., Полоцкий р-н, г. Полоцк, ул. Гагарина, 145;
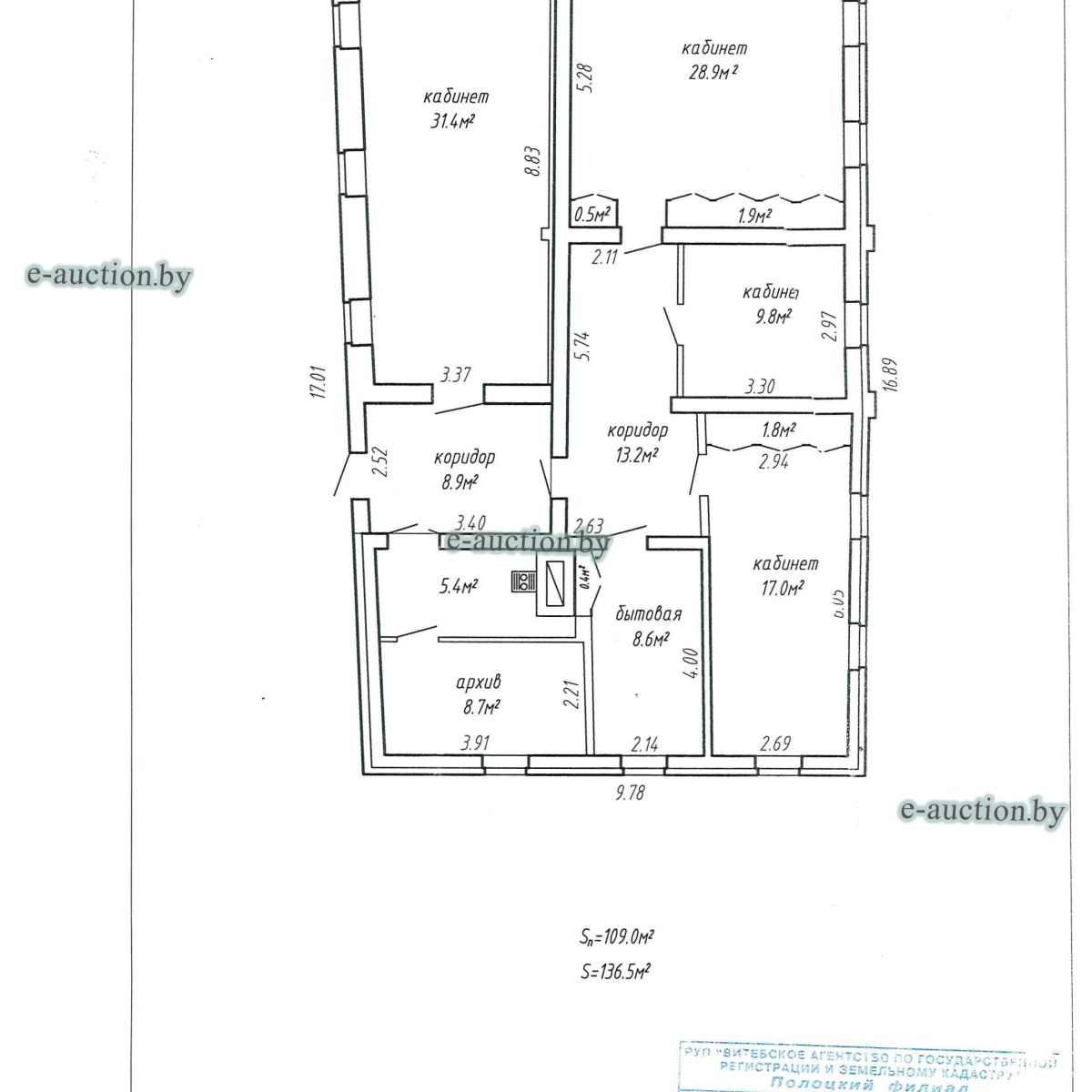
общая площадь (протяженность): 136.5;
наименование: здание административное;
назначение: здание административно-хозяйственное;
составные части и принадлежности: пристройка.

3.Инвентарный номер: 250/C-341166:
адрес (местоположение): Витебская обл., Полоцкий р-н, г. Полоцк, ул. Гагарина, 145/3;
общая площадь (протяженность): 728.2;
наименование: здание склада с пристройкой;
назначение: здание специализированное складов, торговых баз, баз материально-технического снабжения, хранилищ;
составные части и принадлежности: две пристройки;
*имеется козырек, котел и распашные ворота.

Право собственности: Открытое акционерное общество "МИНСК КРИСТАЛЛ" - управляющая компания холдинга "МИНСК КРИСТАЛЛ ГРУПП".
Право хозяйственного ведения: Торговое унитарное предприятие "ТОРГОВАЯ КОМПАНИЯ "МИНСК КРИСТАЛЛ ТРЕЙД".
Расположено на земельном участке с кад. №243500000005002019 площадью 0.8073 га (право аренды). Отдельный участок под обслуживание капитального строения не выделен.
Ограничения (обременения) прав на земельные участки, расположенные в водоохранных зонах рек и водоемов:
Описание права, ограничения (обременения) прав: водоохранная зона водных объектов (река Западная Двина), площадь 0.8073 га.

Цена указана с учетом НДС.
Инвентарный номер 250/C-38889, 250/C-38887, 250/C-341166
Осмотр объекта
Участник электронных торгов обязан до начала электронных торгов осмотреть предмет торгов ( п.2.4.3 Регламента)
Контактное лицо: Заказчик электронных торгов
Контакты: +37533 9158153, +37517 3603682
Продавец имущества
Наименование Торговое унитарное предприятие «ТОРГОВАЯ КОМПАНИЯ «МИНСК КРИСТАЛЛ ТРЕЙД»
УНП организации 192554532
Контакты организатора аукциона 8017 3958323, 8017 3611208
Адрес организатора аукциона 220030, г.Минск, ул.Октябрьская, 15, каб. 42
Сведения о публикации в газете Газета "Рэспубліка", планируемая дата публикации 30.12.2025
Оператор торгов
Наименование Управление оценки и реализации имущества
Адрес пр-т. Дзержинского, 1Б, 220069, г. Минск
Телефон +375 (44) 529-39-07 (отдел электронных торгов), +375 (17) 275-00-12 (магазин), +375 (44) 529-39-24 (магазин), +375 (44) 529-39-27 (интернет-магазин)
Email kanc@rup.by
Реквизиты Республиканское унитарное предприятие по оказанию услуг "БелЮрОбеспечение", УНП: 192821149, р/c BY54AKBB30120000080165100000 в ОАО «АСБ Беларусбанк», БИК AKBBBY2X

Вы оказались единственными учатником аукциона

Вам предоставляется возможнсть преобрести лот №9.2026.01.00050 по начальной цене 70 345.43 BYN плюс 5%.

Итоговая стоимость имущества составит: 73 862.70 BYN

Согласен приобрести лот Не согласен приобрести лот

Вам предложено преобрести имущество

В связи с признанием торгов несостоявшимися ввиду неоплаты победителем стоимости лота предлагаем в течение 5 рабочих дней принять решение о приобретении лота №9.2026.01.00050 по вашей последней ставке.

Итоговая стоимость имущества составит: 0.00 BYN

Согласен приобрести лот Не согласен приобрести лот


Для участия в аукционе вам нужно оплатить задаток в размере 7 034.54 BYN для участия в аукционе.


Внимание! Вы действительно хотите установить ставку равную 15 000,03 BYN значительно превышающую по отношению к предыдущей на

+10 000,00 BYN


Внимание! Вы действительно хотите установить ставку равную 15 000,03 BYN, значительно превышающую по отношению к предыдущей на

+10 000,00 BYN

Ставка значительно превышает предыдущую ставку. Для подтверждения ставки подтвердите согласие на установку и введите слово "СОГЛАСЕН" в поле ниже:




Забыли пароль? Восcтановить доступ к площадке.


Уважаемый пользователь! В соответствии с Законом Республики Беларусь «О защите персональных данных» для продолжения работы на интернет-сайте e- auction.by просим ознакомиться с Пользовательским соглашением интернет-сайта e-auction.by и выразить согласие на обработку информации о пользователе, в том числе персональных данных.


Для восcтановления доступа вам нужно ввести зарегистрированный почтовый адрес. На указанный вами почтовый адрес будет выслана уникальная ссылка для создания нового пароля.

Вспомнили? Авторизация